產品參數
| 填報項目 | 主要內容 |
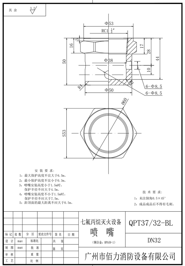
| 1.噴嘴材料類別 | 1.噴嘴材料類別:銅合金 |
| 2.噴嘴的結構尺寸(孔徑、孔數、孔板直徑【適用時】等) |
2.噴嘴的結構尺寸(孔徑Φ8.5mm、孔數12個) |
| 3.噴嘴流量特性(附曲線) | 3.噴嘴流量特性(見附頁) |
產品介紹
噴嘴本體上刻有銘牌標志,內容見附頁照片標志:獲證后3C標志的施加方式為粘貼,位置在噴嘴上
警告用語:見說明書附頁

| 填報項目 | 主要內容 |
| 1.噴嘴材料類別 | 1.噴嘴材料類別:銅合金 |
| 2.噴嘴的結構尺寸(孔徑、孔數、孔板直徑【適用時】等) |
2.噴嘴的結構尺寸(孔徑Φ8.5mm、孔數12個) |
| 3.噴嘴流量特性(附曲線) | 3.噴嘴流量特性(見附頁) |

七氟丙烷 ig541 廣州仿木護欄 木屋廠家 硼酸 七氟丙烷廠家價格 花都搬家公司 廣州園林景觀 廣州復印機出租 廣州噴繪 園林設計軟件 廣州外墻清洗 七氟丙烷廠家 廣州百度愛采購 消防風機 青島商標注冊 廣州安全網批發 網紅星空房
Copyright © 2017-2017 廣州市佰力消防設備有限公司備案號:粵ICP備2022079490號
公司地址:廣東省廣州市番禺區化龍鎮山門大道10號號
聯系電話:020-39951572??? 18620751891黎雨森
電子郵箱:1214332759@qq.com傳真:020-34756906